全国统一服务电话

0871-63163777

作品 设计师 新闻 楼盘
【2018金装奖】第五届 | 家装工程类·金奖:唐艳明—协信天地

2019-03-27 11:32:36

【2018金装奖】第五届 | 家装工程类·金奖:唐艳明—协信天地

2019年1月9日,2018第五届“金装奖”室内设计大赛颁奖盛典在昆明世博园中国馆盛大举行,昆明中策装饰(集团)主任设计师唐艳明的作品《协信天地》荣获“家装工程类”金奖。1.jpg

获奖档案:

奖   项:家装工程类 · 金奖

作   品:协信天地

设计师:唐艳明    昆明中策装饰(集团)主任设计师


家装工程类 · 金奖

唐艳明

昆明中策装饰(集团)  主任设计师


4.jpg

从事设计工作8年,先后到泰国、台湾、马来西亚、香港等地考察学习 

设计理念:

每一套房子都能体现住户的性格与喜好,好的设计能让生活轻松惬意,喜欢呆在自己的堡垒里享受生活带来的快乐

从业经历:

2011年任中策优秀级设计师

2014年晋级为中策精品级设计师

获得荣誉:

2012年作品曾选入《壹家居》杂志书刊

2013年作品入选中策《设计家》第9期

2015年作品入选中策《设计家》第11期

2016年作品入选中策《设计家》第12期      

获奖作品

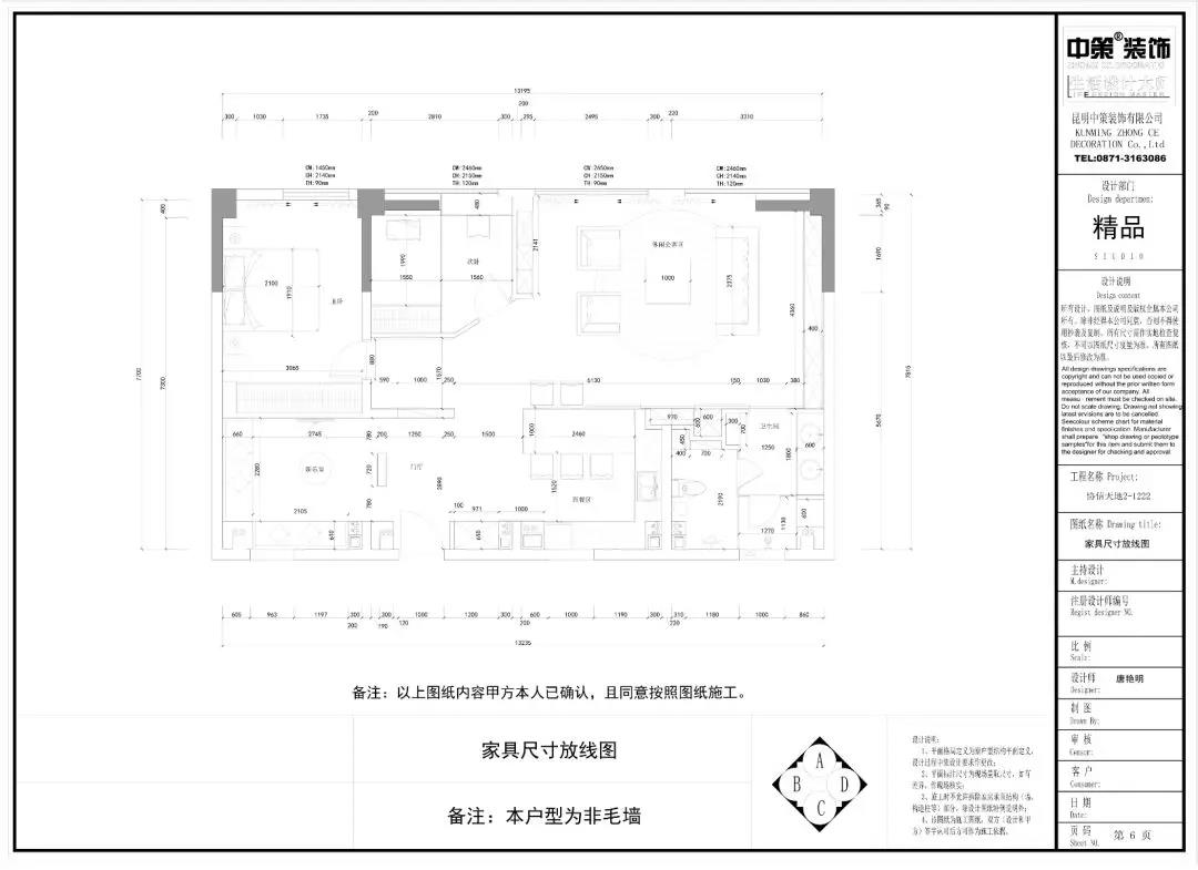
协信天地

建筑面积100平米,台湾风格

工程造价:11万,总造价74万

材料:汉斯格雅、恒洁、千川门、金意陶瓷砖、德格电器、世友地板、温斐地暖、宅饰界配饰……

平面规划


16.jpg

——云南设计界的奥斯卡——

 【金装奖室内设计大赛】简称【金装奖】,是云南最具影响力和公信力的室内设计年度评选。【金装奖】由云南省室内设计行业协会指导,“金装奖”室内设计大赛组委会主办,联合全省各大院校协办,面向全省室内(建筑)设计从业者(专业组)和在校毕业生(学生组)征稿,以“传播设计正念,推动行业发展”为使命,倡导“设计改善生活”的价值观,提倡“公平公正公开公益”的评审原则,致力于搭建一个“发现设计人才、传播设计价值、推动设计发展”的学术竞技平台。

【金装奖】室内设计大赛—评审:【金装奖】室内设计大赛评审分为三个阶段:第一阶段为参赛作品的大范围收集整理,覆盖全省16州市(院校)。第二阶段为“初评”阶段,对要求不符的作品可经组委会返回机构(院校)或个人(学生)重新整理,如仍然不符合要求视为放弃比赛,不进入终审阶段。第三阶段为“终审”阶段,由评审委员会国际评委和省内评委通过网评(盲评)的形式进行打分最终加权平均依次得出评选结果。

【金装奖】室内设计大赛—奖项设置:首先分为“专业组”和“学生组”两大类,其中,“学生组”不按类别细分,设一等奖、二等奖、三等奖、优秀奖、优秀指导教师奖和优秀组织奖。

“专业组”分为四大类,分别是“公装方案类、公装工程类、家装方案类、家装工程类”,每类分别按得分高低评选出一金、二银、三铜和优秀奖,共计54个奖项。

【金装奖】室内设计大赛—公益融推:对获奖设计师和获奖作品,通过杂志、网络、微信公众平台、公益联展等方式,进行综合性展示和推广,全方位呈现给市场大众。